中古一戸建て 宮崎市田野町甲
所在地
宮崎市田野町甲
1,160万円
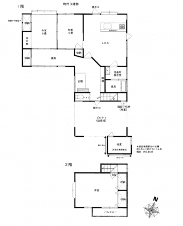
35.04坪
3LDK
月々の
支払例
支払例
万円
年
%
円
※宮崎銀行/借入金1,160万円、返済期間35年、金利1.200%(変動金利型)の場合
※審査により金利は変わる可能性があります。
物件概要
- 交通
-
JR日豊本線 まで 徒歩25分
- 接道状況
- 西側
- 土地面積
- 199.05㎡ (60.21坪)
- 建物面積
- 115.86㎡ (35.04坪)
- 築年数
-
1996年
(平成8)
3月
築30年 - 建ぺい率
- 70%
- 容積率
- 200%
- 土地権利
- 所有権
- 構造および階数
- 木造
- 小学校区
- 田野 (2198m)
- 中学校区
- 田野 (1938m)
- 私道負担
- 333218.00 ㎡
- 地目
- 現況
- 空
- 引渡時期
- 駐車場
- 有
- 上水道
- 下水道
- ガス
- 都市計画
- 区域外
- 用途地域
- 定無
- 設備・条件
- 備考
- 取引態様
- 仲介

