中古一戸建て 宮崎市大字赤江
所在地
宮崎市大字赤江
1,380万円
26.54坪
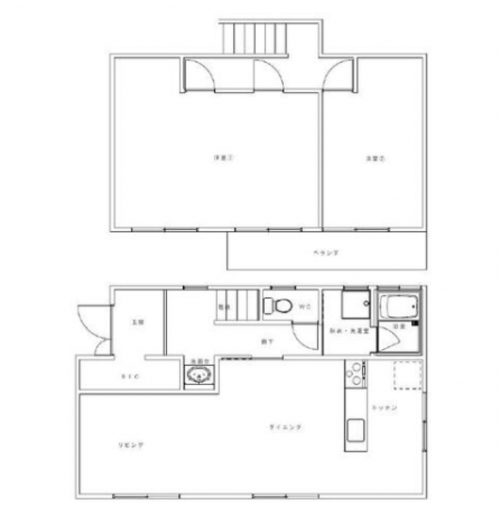
3LDK
月々の
支払例
支払例
万円
年
%
円
※宮崎銀行/借入金1,380万円、返済期間35年、金利1.200%(変動金利型)の場合
※審査により金利は変わる可能性があります。
物件概要
- 交通
-
まで 徒歩7分
- 接道状況
- 北西側
- 土地面積
- 171.97㎡ (52.02坪)
- 建物面積
- 87.76㎡ (26.54坪)
- 築年数
-
1994年
(平成6)
1月
築32年 - 建ぺい率
- 60%
- 容積率
- 200%
- 土地権利
- 所有権
- 構造および階数
- 木造
- 小学校区
- 赤江 (1305m)
- 中学校区
- 赤江東 (1087m)
- 私道負担
- 地目
- 宅地
- 現況
- 引渡時期
- 駐車場
- 上水道
- 下水道
- ガス
- 都市計画
- 市街化区域
- 用途地域
- 工業
- 設備・条件
- 備考
- 取引態様
- 仲介

