中古一戸建て 宮崎市郡司分
所在地
宮崎市郡司分
3,500万円
30.77坪
2LDK
まるでフランスのおばあちゃんの家に遊びに来たような、
かわいくて、やわらかくて、あたたかい。
そんな雰囲気をまとった、私たち自慢のモデルハウスを売却することになりました。
2020年にフルリノベーション。
UA値0.39(HEAT20/G2.5)の高い断熱性と、
耐震等級3のしっかりとした強さをあわせ持つ住まいに。
家の中には、小さな“きゅん”があちこちに。
扉の色、窓辺の景色、照明の陰影…
毎日がふっと心地よくなるように、細かなところまでていねいに仕上げました。
これまで大事にしてきたこの家を、
これからも同じように大切に使ってくださる方にお会いできますように。
月々の
支払例
支払例
万円
年
%
円
※宮崎銀行/借入金3,500万円、返済期間35年、金利1.100%(変動金利型)の場合
※審査により金利は変わる可能性があります。
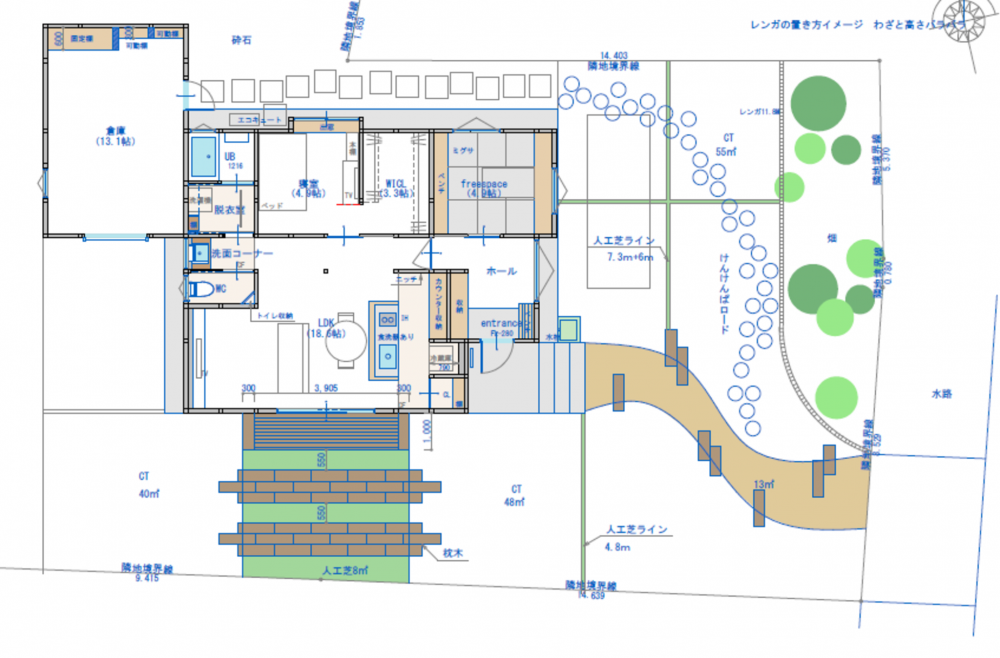
物件概要
- 交通
-
バス停消防署前 まで 徒歩3分
JR宮崎空港線/田吉駅 徒歩22分
- 土地面積
- 405.03㎡ (122.52坪)
- 建物面積
- 101.72㎡ (30.77坪)
- 築年数
- 建ぺい率
- 60%
- 容積率
- 200%
- 土地権利
- 所有権
- 構造および階数
- 木造 1階建て 造
- 小学校区
- 本郷 (775m)
- 中学校区
- 本郷 (879m)
- 私道負担
- 地目
- 宅地
- 現況
- 空
- 引渡時期
- 相談
- 駐車場
- 有 普通3台
- 上水道
- 公共
- 下水道
- 公共
- ガス
- その他
- 都市計画
- 市街化区域
- 用途地域
- 2種住居
- 設備・条件
- システムキッチン、食器洗浄乾燥機、IHクッキングヒーター、オール電化、洗浄便座、複層ガラス、ウォークインクローゼット、モニタ付インターホン、ペット可、1BOX駐車可、エコキュート
- 備考
- 取引態様
- 売主



