中古一戸建て 宮崎市大字加江田
所在地
宮崎市大字加江田
3,850万円
36.03坪
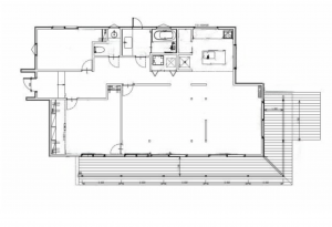
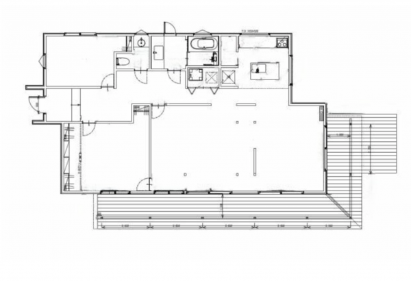
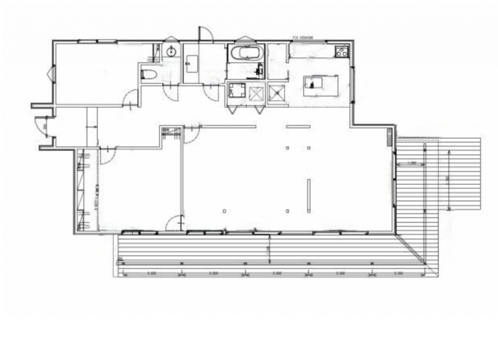
2LDK
木崎・青島まで車で8分。
サーファー必見のフルリノベーションハウスです。
月々の
支払例
支払例
万円
年
%
円
※宮崎銀行/借入金3,850万円、返済期間35年、金利1.200%(変動金利型)の場合
※審査により金利は変わる可能性があります。
物件概要
- 交通
-
日南線 まで 徒歩19分
- 接道状況
- 南側 公道
- 土地面積
- 585.85㎡ (177.21坪)
- 建物面積
- 119.13㎡ (36.03坪)
- 築年数
-
1980年
(昭和55)
2月
築46年 - 建ぺい率
- 70%
- 容積率
- 200%
- 土地権利
- 所有権
- 構造および階数
- 小学校区
- 木花 (1971m)
- 中学校区
- 木花 (1995m)
- 私道負担
- 地目
- 現況
- 居住中
- 引渡時期
- 駐車場
- 有
- 上水道
- 下水道
- ガス
- 都市計画
- 市街化調整区域
- 用途地域
- 設備・条件
- 備考
- 取引態様
- 仲介

